SHOP
sezione di
www.softwareparadiso.it
software, servizi, informazioni sull'edilizia e la casa
 
Feltrinelli - costruzioni di legno
L’attività della FFPC negli ultimi anni è stata molto intensa, annoverando realizzazioni di numerosi villaggi, sia in zone di montagna che in zone marittime.
Se ti occorrono preventivi per case in legno, coperture grandi o piccole in legno, per piscine, palestre, luoghi pubblici e privati, per l'industria, per il commercio, per il tempo libero, per le emergenze siamo a tua disposizione, anche con il supporto tecnico che offriamo.
In questa pagina vengono mostrate alcune foto e immagini delle costruzioni che abbiamo realizzato o che offriamo ai nostri clienti. Qualunque altra struttura ti occorra siamo a disposizione. Se sei un tecnico, un'impresa, un ente o un privato siamo comunque al tuo fianco per risolvere ogni tipo di problema edilizio.
Clicca qui per tornare alla pagina principale dell'azienda.
 

Costruzione di case in legno 
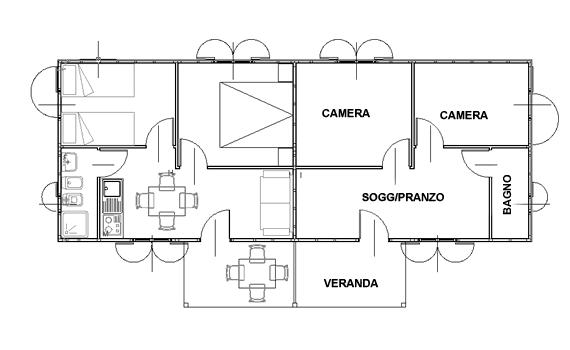
Esempio di una pianta di una villetta 
 

Le pareti 

 

Le coperture 

 

anche di grandi dimensioni, senza pilastri 

 

Tetti, anche nei restauri di edifici importanti 

 

I tetti di chiese, edifici sportivi, disegni e composizioni particolari 

 

 

L'azienda accetta commesse dai piccoli interventi alle grandi opere per emergenze o per interventi di impegno economico e significato urbano e urbanistico elevato, per ogni zona d'Italia.

Nostro giudizio
E' positivo, anche se vanno sempre verificati i prezzi.

Google
 
Web www.softwareparadiso.it