SHOP
sezione di
www.softwareparadiso.it
software, servizi, informazioni sull'edilizia e la casa
 
chalet in legno: immagini
Le nostre case sono realizzate in base al progetto del cliente, con metratura e planimetria personalizzate.
Siamo in grado pertanto di fornire chalet per tutte le esigenze.
Abbiamo realizzato abitazioni, attività commerciale, dependance, case vacanza, studi, negozi.
Illustrateci le vostre esigenze!
In questa pagina vengono illustrati, con delle immagini, alcune delle molteplici realizzazioni possibili. Il calore del legno naturale diviene composizione vivibile all'interno ed all'esterno, in un progetto edilizio realizzabile con minore spesa della struttura in cemento armato o in mattoni, con una maggiore rapidità, un più organico inserimento nell'ambiente. La casa sarà parte integrante della zona in cui viene edificata: il tetto, le pareti, il pavimento, i rivestimenti, i divisori, tutto sarà di un unico materiale, antico come l'uomo e amico: il legno.
Dati tecnici delle nostre costruzioni.
 

 
Modello Sella Nevea 
Villa su 2 piani: piano terra e piano superiore di 100 m² ciascuno, per un totale di 200 m² 
E` idonea a sopportare il rigore invernale (anche -20/25 °C) 
200 m² di calore e accoglienza 


 
Modello Lavaredo 


 
Modello Lago Carezza 


 
Modello Cadore 


 
Modello Asiago 


 
Austria - Modello Villach 


 
Modello Falzarego 


 
Modello Misurina 


 
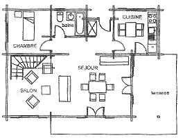
Pianta interna della costruzione 
 


Google
 
Web www.softwareparadiso.it